Benaki Museum Pireos
1st Prize - Competition (2001)
Nomination - Mies Van der Rohe Award(2004)
Award for Built Project - Greek Architectural Association
Award for Contemporary Architectural - Greek Architectural Association


Treasure chest
The package of the precious is the main concern in the design of the museum. The spatial structure constitutes the conditions for the wandering of the body and the eye, developing choreography of movement in the new Benaki Museum. The activation of the senses through a metaphoric game literally creates the conditions the building relates to the visitors and the city.
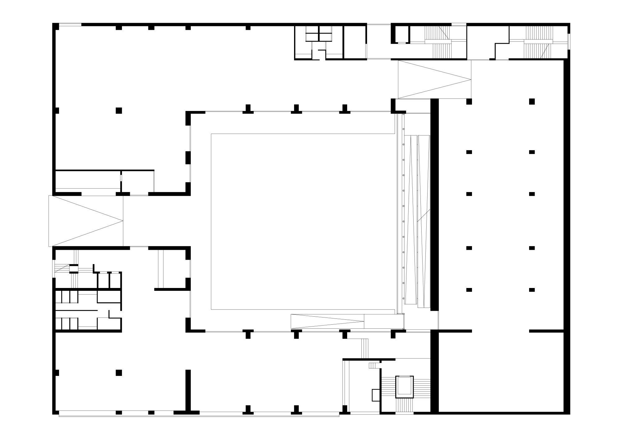
The first programmatic intention was to create an enclosed building, a treasure chest, which spreads over a whole urban block. In its middle there is a big void, the atrium, the center of orientation of the visitors’ movement. The quality of the internal and external boundaries of the building, their materiality, their dressing, their morphology was of a crucial importance.
The whole approach was based on a bipolar concept. The outside walls, towards the city, are closed, monolithic, vertical and smooth with few horizontal necessary openings. The red Iranian marble, like petrified wood, resists time and fulfills the demands of an enclosed boundary towards the city.
On the contrary the walls of the atrium are transparent layers of materials constituting depth with an inclination opening towards the sky. The materials used are absorbent, soft, folded, movable, and changeable in time. The big wooden louver panels, which cover three from the four facades of the atrium, act as diaphragms of light. The open air corridors, in-between the wooden louvers and the glass walls, allow the visitors to follow the happenings in the atrium, attributing to this space a theatrical dimension.
Movement is organized on a big axe, which starts from the entrance gallery, through the atrium. The gaze is directed towards the big screen from metal mesh, which is the forth façade of the atrium. The south orientation of the mesh reflects the sun and makes it look like falling water. During night, when the lights are on, visitors moving on the ramp behind the metal mesh, which is the main path connecting the exhibition halls, become the main exhibit of the museum
The museum was designed to house only periodical exhibitions, thus flexibility of the spatial layout was a central issue.
The whole operation was the intervention and the addition of an extra floor to an existing building from late 60;s. The arched new roofs are constructed from metal and concrete in order to avoid the columns.
Σεντούκι θησαυρού
Ολοένα και πιο πολύ η αρχιτεκτονική μοιάζει με την παραγωγή κινηματογραφικής ταινίας. Ένας μεγάλος αριθμός συντελεστών απαιτείται για την επίτευξη του στόχου, προϋπόθεση, η δημιουργική συνεργασία. Στο κτίριο αυτό αποτυπώνεται με τον πιο εύγλωττο τρόπο το όραμα αυτής της ομάδας για μια άλλη πόλη, μία άλλη αρχιτεκτονική.
Ο σχεδιασμός ενός μουσείου είναι στην ουσία η συσκευασία των πολύτιμων αντικείμένων του πολιτισμού. Η οργάνωση των συνθηκών περιπλάνησης του σώματος και του βλέμματος των επισκεπτών στον χώρο διαμορφώνει τη χωρογραφία στο νέο Μουσείου Μπενάκη στην Πειραιώς. Η ενεργοποίηση των αισθήσεων σε ένα παιχνίδι μεταφορικών συνειρμών θέτει τους όρους μέσα από τους οποίους το κτίριο συνομιλεί με τη πόλη και τους επισκέπτες.
Η πρώτη βασική επιλογή ήταν η διαμόρφωση ενός περίκλειστου κτιρίου, με περιμετρική διάταξη στα όρια του οικοδομικού τετραγώνου. Στο εσωτερικό του διαμορφώνεται ένα μεγάλο κενό, το αίθριο, που αποτελεί το κέντρο αναφοράς και διασταύρωσης των κινήσεων. Το ερώτημα που τέθηκε άμεσα ήταν η ποιότητα της διαμόρφωσης των ορίων προς την πόλη και το εσωτερικό, τι μορφή , τι ύλη και τι ένδυμα.
Η απάντηση στηρίχθηκε σε ένα δίπολο. Οι εξωτερικοί τοίχοι προς την πόλη είναι ερμητικά κλειστοί, μονολιθικοί, λείοι, απόλυτοι με ελάχιστα αναγκαία ανοίγματα. Το κόκκινο μάρμαρο από το Ιράν, σαν απολιθωμένο ξύλο που παγώνει τον χρόνο, μοιάζει να πληροί τις απαιτήσεις κλειστότητας του ορίου προς την πόλη. Στο εσωτερικό αίθριο, αντίθετα, κυριαρχεί η αίσθηση του ανοιχτού, απορροφητικού, μαλακού, πτυχωτού, κινητού, μεταβαλλόμενου στο χρόνο, ορίου. Το χαρακτηριστικό των ορίων του αίθριου είναι η διαφάνεια και η διαστρωμάτωση των υλικών. Τα πετάσματα από μεγάλες ξύλινες περσίδες, που καλύπτουν τις τρεις από τις τέσσερις όψεις του αίθριου, μοιάζουν με διαφράγματα που ο χρόνος αποτυπώνεται πάνω τους. Εξώστες κίνησης επισκεπτών μεσολαβούν μεταξύ των διάφανων τοίχων του αίθριου και των περσίδων και προσδίδουν μια ιδιότυπη θεατρικότητα στον χώρο.
Η κίνηση των επισκεπτών οργανώνεται, μέσω του αίθριου, πάνω σε ένα μεγάλο άξονα που ξεκινά από τη στοά εισόδου και κατευθύνει το βλέμμα στη μεγάλη οθόνη από μεταλλικό ανοξείδωτο πλέγμα, την τέταρτη όψη. Ο νότιος προσανατολισμός του πλέγματος αντανακλά το φως της ημέρας με ιριδισμούς νερού Το βράδυ με τα εσωτερικά φώτα αποκαλύπτεται η πομπή των επισκεπτών στην ράμπα επικοινωνίας των βασικών εκθεσιακών χώρων, αναδεικνύοντας την σαν το βασικό έκθεμα του μουσείου.
Το νέο μουσείο μοιάζει να αιωρείται κάπου ανάμεσα στη μνήμη και τη φαντασία. Με τον τρόπο αυτό φιλοδοξεί να παίξει ρόλο καταλύτη στο συλλογικό υποσυνείδητο της πόλης και των κατοίκων της.
2001 – 2004
1st AWARD 2001
NOMINATED:EU Architecture Prize MIES VAN der ROHE 2004
AWARD for the CONTEMPORARY ARCHITECTURAL WORK, SADAS-PEA 2005
- Architects: Maria Kokkinou, Andreas Kourkoulas
- Project Architect: Artemis Halari
- Collaborating Architectural Office: Antonia Panou
- Architectural Consultants: Dimitris Korres, Yiannis Peponis, Stratos Vasileiou, Yiorgos Nikopoulos, Kyriakos Keoglou, Nicholas Paplomatas
- Acoustic Consultant: Theodoros Timagenis
- Theatrical Consultant: Michalis Pitenis
- Audiovisual Facilities Consultant: Nikos Michailidis
- Lighting Consultant: Thanasis Kanellias
- Structural Engineer: Kostas Zambas
- Associate: Kostas Papantonopoulos
- Collaborating Office: K. Agapiou – A. Hadzidaki & Associates Civil Engineer E.E.
- Electrical Engineer: Pantelis Argyros
- Associates: H. Argyros, A. Adamopoulou, B. Beloni
- Project Management Consultants: Stadion S.A.
- Contractor: Vioter S.A.
- Photographer: Erieta Attali
- Area: 8,500 sq.m.
2001 – 2004
1st ΒΡΑΒΕΙΟ 2001
Υποψηφιότητα: Ευρωπαϊκό βραβείο Αρχιτεκτονικής
Mies Van der Rohe 2004
Βραβείο Σύγχρονου Αρχιτεκτονικού Έργου ΣΑΔΑΣ – ΠΕΑ 2005
- Αρχιτέκτονες: Μαρία Κοκκίνου, Ανδρέας Κούρκουλας
- Αρχιτέκτονας έργου: Άρτεμις Χάλαρη
- Συνεργαζόμενο Αρχιτεκτονικό Γραφείο: Αντωνία Πάνου
- Αρχιτεκτονικοί Σύμβουλοι: Δημήτρης Κορρές, Γιάννης Πεπόνης, Στράτος Βασιλείου, Γιώργος Νικόπουλος, Κυριάκος Κέογλου, Νικόλαος Παπλωματάς
- Ακουστικός Σύμβουλος: Θεόδωρος Τιμαγένης
- Θεατρικός Σύμβουλος: Μιχάλης Πιτένης
- Σύμβουλος Οπτικοακουστικών Εγκαταστάσεων: Νίκος Μιχαηλίδης
- Σύμβουλος Φωτισμού: Θανάσης Κανέλλιας
- Δομικός Μηχανικός: Κώστας Ζαμπάς
- Συνεργάτης: Κώστας Παπαντωνόπουλος
- Συνεργαζόμενο Γραφείο: Κ. Αγαπίου – Α. Χατζιδάκη & Συνεργάτες Πολιτικός Μηχανικός Ε.Ε.
- Ηλεκτρολόγος Μηχανικός: Παντελής Αργυρός
- Συνεργάτες: Χ. Αργυρός, Α. Αδαμοπούλου, Β. Μπελώνη
- Σύμβουλοι Διαχείρισης Έργων: Stadion S.A.
- Ανάδοχος: Vioter S.A.
- Φωτογράφος: Εριέτα Αττάλη
- Έκταση: 8.500 τ.μ.
























