Ombra Restaurant


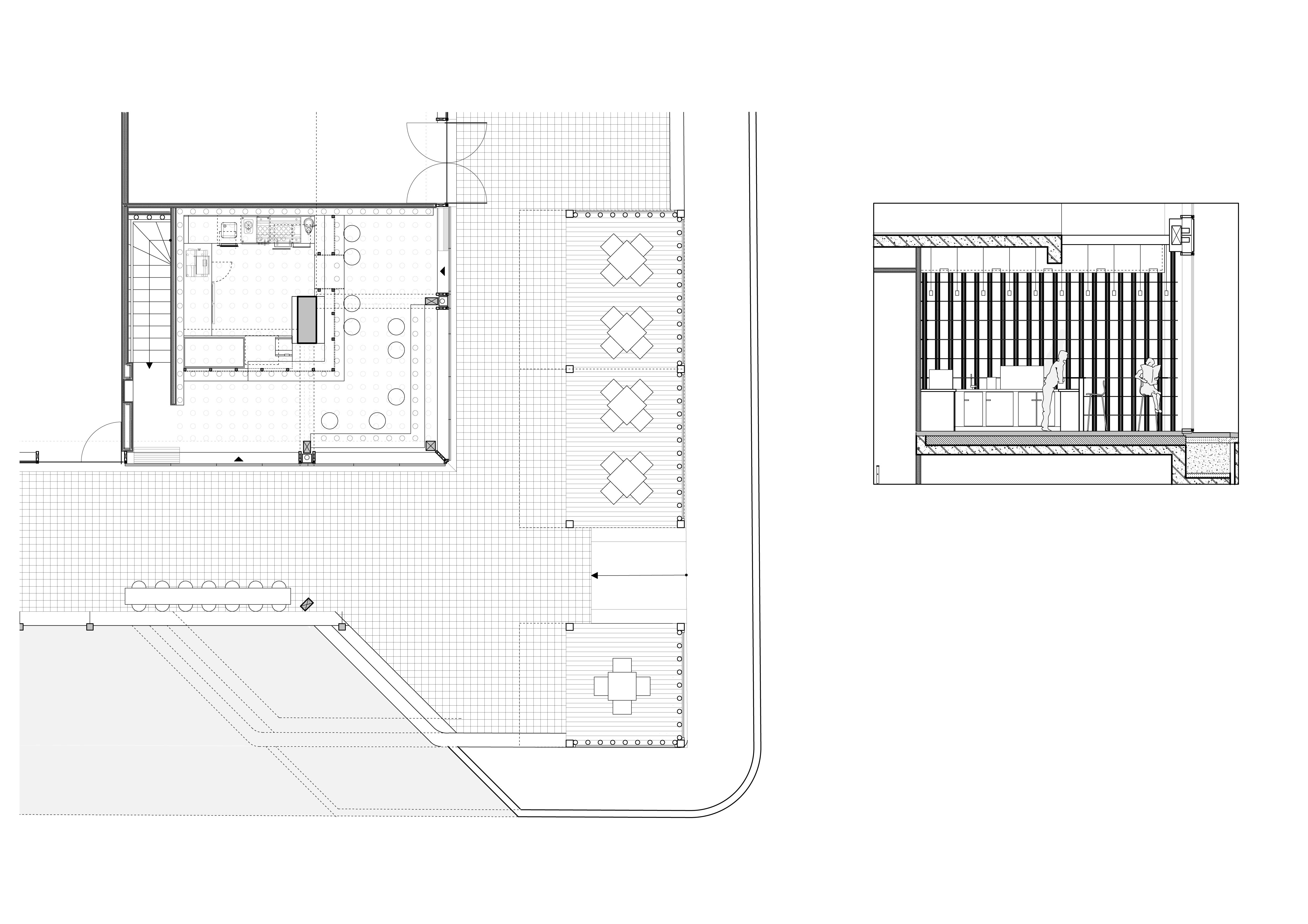
The small angular and high-ceilinged bar – cafe in Faro’s of Psychico, at the side street of Kifisias Av. followed a strategy of abstraction. The basic material, paper tubes (D=12cm) which potentially cover the whole area like a forest and subtracted to obtain the necessary functional space empty.
The tubes are still shaping the false cover the walls and used to support the bar and raised perimeter benches. The tubes of the ceiling used for an atmospheric lighting while in between the perimeter walls arranged shelves of sheets. Our aim is to develop a space that creates the feeling that you are surrounded by a ‘ forest ‘ of paper tubes .
The angular façade consists of sliding glazed that disappear during the summer so as to create a strong relationship of inside with the outside.
Το μικρό γωνιακό και ψηλοτάβανο μπαρ-καφέ στο Φάρο του Ψυχικού, στον παράδρομο της Κηφισίας ακολούθησε μια στρατηγική αφαίρεσης. Το βασικό υλικό χαρτοσωλήνες (φ12) που εν δυνάμει, καλύπτουν όλο τον χώρο σαν ένα δάσος και αφαιρούνται ώστε να προκύψει ο απαραίτητος κενός λειτουργικός χώρος.
Οι σωλήνες που απομένουν διαμορφώνουν την ψευδοροφή καλύπτουν τους τοίχους και χρησιμοποιούνται για την στήριξη του μπαρ και των υπερυψωμένων περιμετρικών πάγκων.
Τα στοιχεία της ψευδοροφής αξιοποιούνται για έναν ατμοσφαιρικό φωτισμό ενώ ενδιάμεσα στους περιμετρικούς τοίχους τοποθετούνται ράφια από λαμαρίνα. Στόχος είναι η διαμόρφωση ενός χώρου που δημιουργεί την αίσθηση ότι περιβάλλεσαι από ένα ‘δάσος’ χαρτοσωλήνων.
Η γωνιακή πρόσοψη αποτελείται από συρόμενα υαλοστάσια που εξαφανίζονται και τους καλοκαιρινούς μήνες διαμορφώνουν μια δυνατή σχέση του μέσα με τον έξω χώρο.
2012
Architects: Maria Kokkinou – Andreas Kourkoulas
Associate: Marianna Athanasiadou
Electrical – Mechanical Engineer: P & H. Argyros
Construction: Synapsis S.A.
Photographer: Mariana Bisti
Area: 40 sq.m.
2012
Αρχιτέκτονες: Μαρία Κοκκίνου, Ανδρέας Κούρκουλας
Συνεργάτης: Αθανασιάδου Μαριάννα
Η/Μ Μελέτη: Π&Χ Αργυρός
Κατασκευή : Σύναψις ΑΕ
Φωτογράφος : Μπίστη Μαριάνα
Επιφάνεια: 40 τ.μ.







